Plan Local d'Urbanisme
PLU - révision approuvée le 30 mars 2023
Vous pouvez consulter notre PLU ci-dessous
Lien : http://www.service-public.fr/particuliers/vosdroits/N319

Liste de pièces jointes
file_downloadDélibération approuvant la révision du PLU.pdf (PDF - 3.06 MB)
file_downloadOrientations d_Aménagement et de Programmation.pdf (PDF - 3.27 MB)
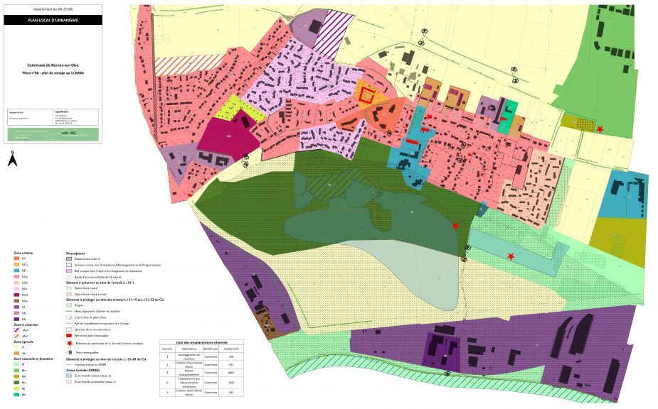
file_downloadPlan de zonage 1_2000ème.pdf (PDF - 14.42 MB)
file_downloadPlan de zonage 1_4000ème.pdf (PDF - 6.57 MB)